COD P0858 – Patrimóvel vende: Localizado entre Barão de Ipanema e Bolívar, com vaga na escritura e 02 vagas para visitantes, este imóvel é o que você buscava em Copacabana.
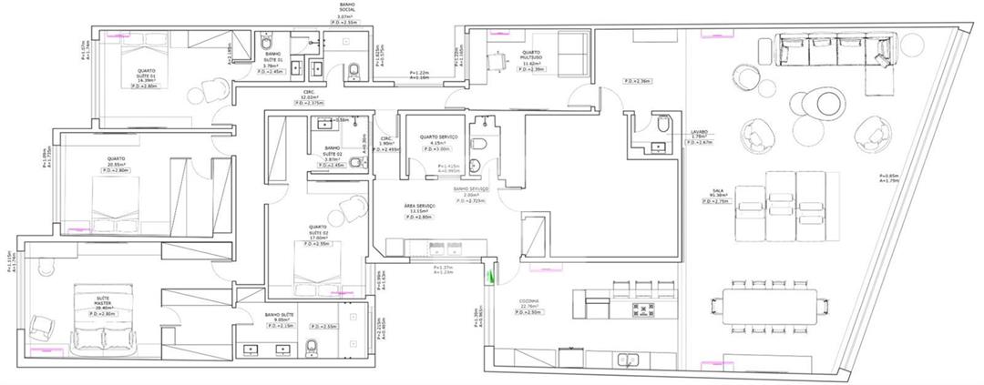
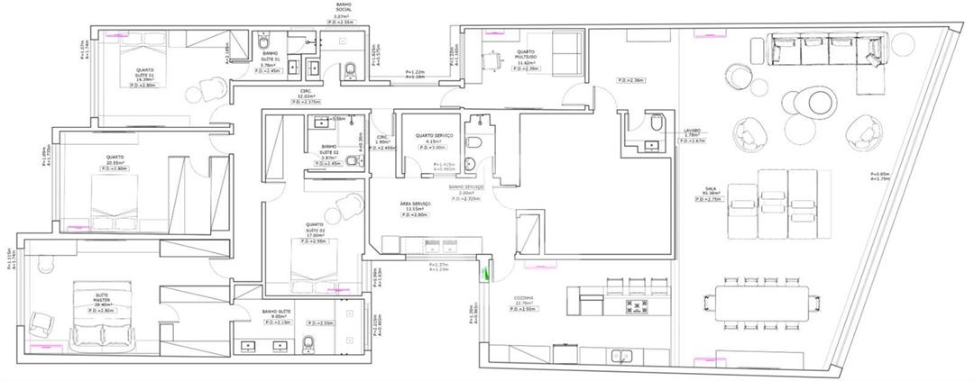
O apartamento foi reformado e projetado por arquiteta, possui metragem de 330m², rebaixo de gesso com projeto luminotécnico, piso porcelanato 60×60 nas áreas molhadas, sala em tábua corrida e quartos em taco “espinha de peixe”.
O edifício possui portaria 24 horas, circuito interno de tv e 02 vagas para visitantes.
A planta é generosa, com cômodos bem distribuídos da seguinte forma:
Ampla antessala; lavabo; generoso living climatizado com 95m², bem iluminado e ventilado por janela panorâmica; cozinha americana com 23m², climatizada, entregue com armários planejados Rommanza, bancadas e ilha central. Cozinha totalmente integrada à sala; Área de serviço separada com acesso próprio, contendo ampla bancada com 02 tanques e 02 pontos para máquinas lava e seca, área para despensa, quarto e banheiro.
A área íntima do imóvel pode ser acessada pela área de serviço ou sala íntima adjacente ao hall de entrada. 4 quartos espaçosos, sendo 3 suítes. Todos os quartos com preparação para split e espaço para camas king size. Suíte master com 29m² e banheiro com mais de 9m², entregue com 02 chuveiros de teto, 02 cubas e blindex do piso ao teto.
Sol da manhã, fresco e bem ventilado.
Próximo ao Metrô e todo o comércio do bairro, como: hotéis, supermercados, drogarias e academias
FOTOS MERAMENTE ILUSTRATIVAS – Informações Atualizadas em Seis de janeiro Dois Mil e Vinte e Seis







































