Conheça o RG Personal Residences em Recreio dos Bandeirantes
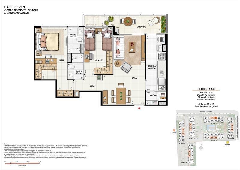
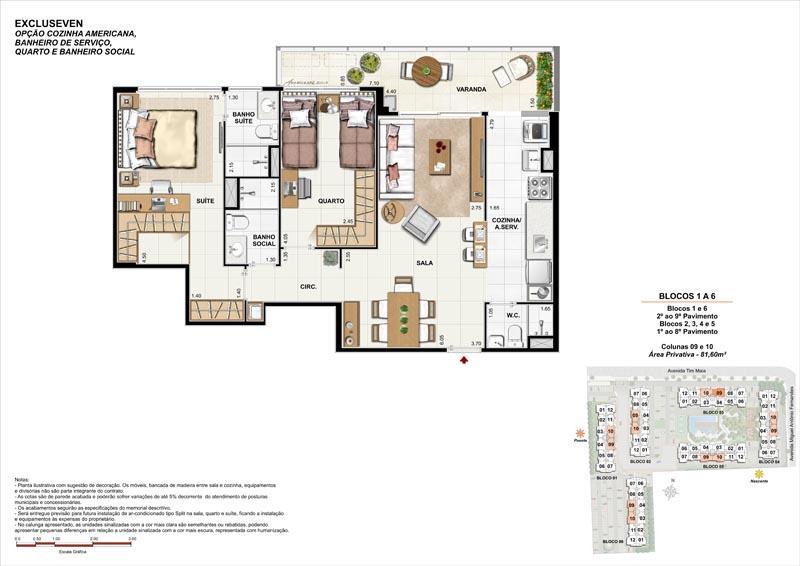
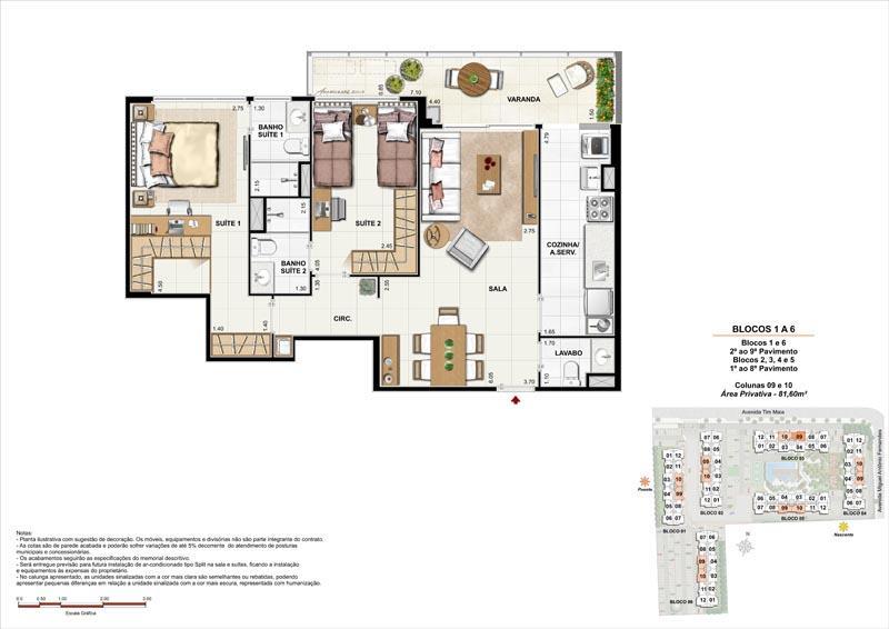
Apartamentos de 2 e 3 quartos com 1, 2 ou 3 suítes no Recreio dos Bandeirantes – RG Personal Residences. Um apartamento feito para você e por você. O primeiro residencial da cidade projetado dentro dos padrões Aqua de sustentabilidade. O RG Personal possui unidades Level com 2 quartos de 67 a 81 m²; unidades Level com 3 quartos de 91 m²; e unidades High com 3 quartos de 125 a 181 m².
Principais Características do RG Personal Residences
- Localização: Recreio dos Bandeirantes, uma das regiões mais valorizadas do Rio de Janeiro
- Área Privativa: 68 a 180m² de puro conforto e elegância
- Dormitórios: 2, 3 quartos espaçosos com design moderno
- Vagas de Garagem: vagas cobertas para sua comodidade
- Imobiliária: Patrimóvel, a mais tradicional imobiliária do Rio de Janeiro














































































