Conheça o Glória Residencial em Glória
Hotel Glória – Luxo e Sofisticação em um Retrofit Residencial
Descubra o Hotel Glória, um ícone do luxo e da história do Rio de Janeiro. Construído em um antigo palacete neoclássico, projetado por Joseph Gire – o renomado arquiteto francês responsável pelo Copacabana Palace – o hotel completa 100 anos em 2022. Agora, ele será transformado em um Retrofit Residencial, preservando todo o seu charme e elegância.
As unidades oferecem vistas panorâmicas para os principais cartões postais da Cidade Maravilhosa, como a Marina da Glória, o Aterro do Flamengo, o Cristo Redentor e o Pão de Açúcar. Imagine acordar todos os dias com essas deslumbrantes paisagens ao seu redor.
Composto por 3 edifícios, o empreendimento oferece uma ampla variedade de opções de lazer para os moradores, incluindo 2 rooftops que proporcionam vistas incríveis da cidade. Além disso, você encontrará 4 lojas no local, oferecendo conveniência e praticidade.
Não perca a oportunidade de viver em um dos endereços mais icônicos do Rio de Janeiro. O Hotel Glória oferece a combinação perfeita de história, luxo e conforto em um ambiente residencial sofisticado. Entre em contato conosco agora mesmo e garanta o seu lugar nesse empreendimento único. Aproveite o melhor que a cidade tem a oferecer a partir do seu novo lar no Hotel Glória.
Principais Características do Glória Residencial
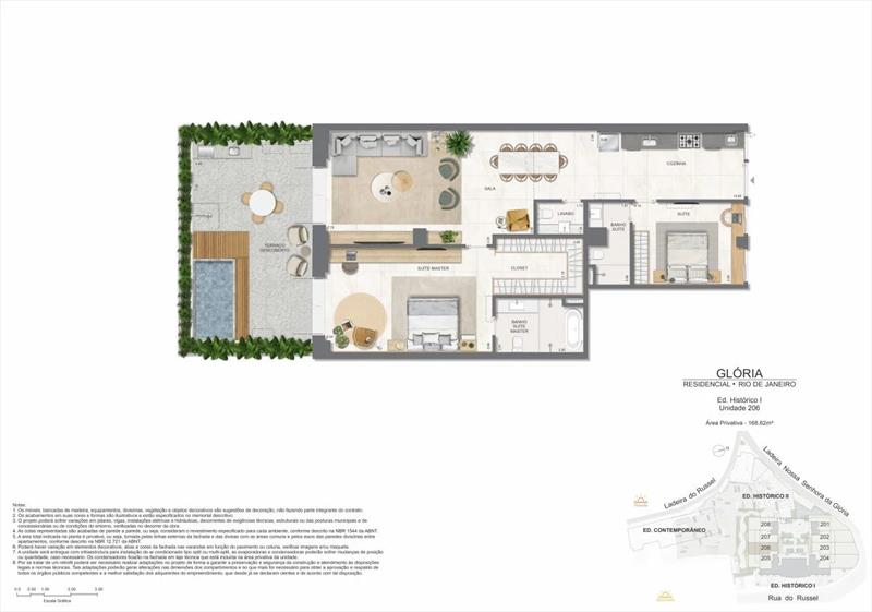
- Localização: Glória, uma das regiões mais valorizadas do Rio de Janeiro
- Área Privativa: 77 a 311m² de puro conforto e elegância
- Dormitórios: 2, 3 quartos espaçosos com design moderno
- Vagas de Garagem: 1, 2 vagas cobertas para sua comodidade
- Imobiliária: Patrimóvel, a mais tradicional imobiliária do Rio de Janeiro










































































































