Conheça o Era Botafogo em Botafogo
Em breve um novo residencial da Mozak em Botafogo, em uma das ruas mais charmosas e tradicionais do bairro: Dona Mariana.
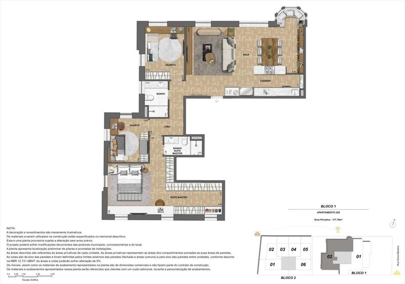
Bl. 01 • Casarão • 4 unidades
2 E 3 QUARTOS
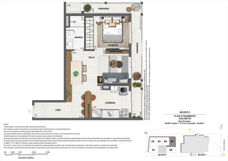
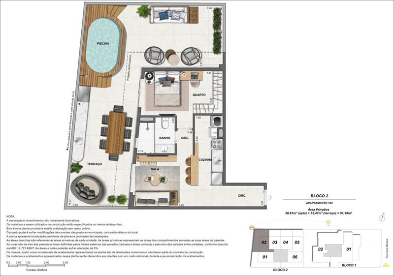
Bl. 02 • Ed. Contemporâneo • 35 unidades
6 gardens sala/quarto.
27 unidades tipo sala/quarto.
2 coberturas duplex 2 quartos.
PUC no rooftop: piscina, deck, academia e salão gourmet.
Térreo com: lavanderia compartilhada, bicicletário e garagem.
Principais Características do Era Botafogo
- Localização: Botafogo, uma das regiões mais valorizadas do Rio de Janeiro
- Área Privativa: 41 a 137m² de puro conforto e elegância
- Dormitórios: 2, 3 quartos espaçosos com design moderno
- Vagas de Garagem: vagas cobertas para sua comodidade
- Imobiliária: Patrimóvel, a mais tradicional imobiliária do Rio de Janeiro









































